Emerald Homes of the Gulf CoastCall: (251)-947-2311

The Carondelet by Champion
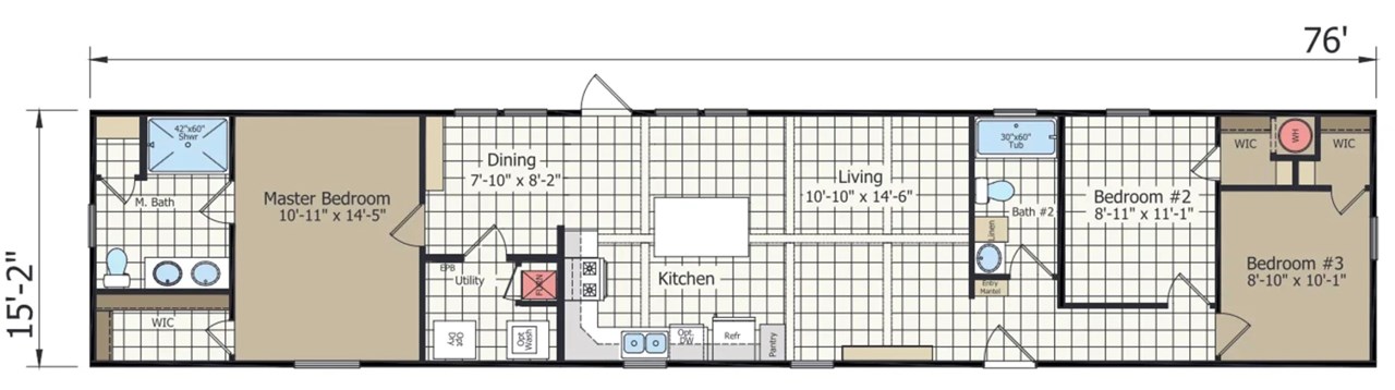
bedBeds: 3
bathtubBaths: 2
square_footSquare feet: 1,216
calendar_monthYear built: 2025
Contact:
Emerald Homes OTGC

bedBeds: 3
bathtubBaths: 2
square_footSquare feet: 1,216
calendar_monthYear built: 2025