Emerald Homes of the Gulf CoastCall: (251)-947-2311

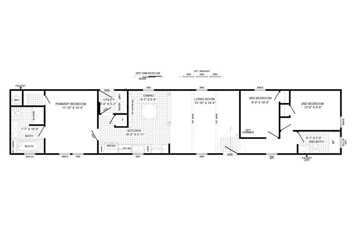
The Walsh by Buccaneer
bedBeds: 3
bathtubBaths: 2
square_footSquare feet: 1,216
calendar_monthYear built: 2025
The Walsh by Buccaneer features Upgrades throughout. Sheetrock walls. Tile Backsplash in Kitchen. Tons of storage and much more! Call an Emerald Homes Sales representative today for more information. 251-947-2311.

Contact:
Emerald Homes OTGC