Emerald Homes of the Gulf CoastCall: (251)-947-2311

The Washington by SE Patriot
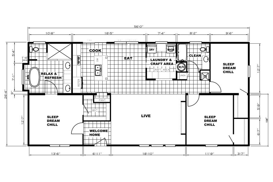
bedBeds: 3
bathtubBaths: 2
square_footSquare feet: 1,568
calendar_monthYear built: 2025
The "Washington" features
- Open Concept
- Granite Kitchen Island
- Solid Wood Cabinet Doors
- All-Metal Faucets
- Craft Area
- Stylish Barn Door & Pocket Door
- Pendant Lighting
- Free Standing Oval Tub
- Luxury Walk-in Tile Shower
Come look at all these great features in this popular home!
Contact:
Emerald Homes OTGC