Emerald Homes of the Gulf CoastCall: (251)-947-2311

The Dewey by Buccaneer
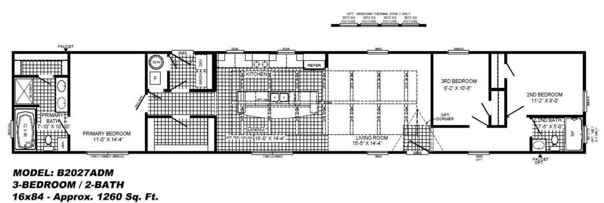
bedBeds: 3
bathtubBaths: 2
square_footSquare feet: 1,344
calendar_monthYear built: 2024
The "Dewey"

bedBeds: 3
bathtubBaths: 2
square_footSquare feet: 1,344
calendar_monthYear built: 2024
The "Dewey"